Ga naar inhoud

Te koop: woonhuis Pinksterbloem 6 5411 TZ Zeeland

Van de Ven Garantiemakelaars
Neem contact met mij op

Verkocht

€ 899.500,- k.k.

Luxe vrijstaand woonhuis met vrijstaand gastenverblijf en vrij gelegen achtertuin aan het water. De woning ligt aan de voorzijde in een rustige woonomgeving met het centrum van Zeeland op korte afstand.

Deze woning is in 1996 gebouwd en in 2018 is aan de achterzijde bij de woonkamer nog een tuinkamer/serre aangebouwd. Vanuit de bouwperiode is de woning volledig geïsoleerd. In 2022 is de cv.-ketel vernieuwd en zijn 28 zonnepanelen geplaatst. Hierdoor beschikt de woning over een energielabel A. De vrijstaande garage links van de woning is ook uitgebouwd en verdeeld in een garage en gastenverblijf. Dit gastenverblijf heeft ook alle voorzieningen (keuken, sanitair, leefruimte, verwarming etc.). In de tuin ligt een prachtig zwembad en achterin staat een heuse overdekte BBQ plaats.

Het totale gebruiksoppervlakte wonen is maar liefst 251 m² (inclusief gastenverblijf van 40 m²), de garage is 20 m² groot en het perceel 760 m². In 2018 heeft een grote verbouwing plaatsgevonden, waarbij de woning is gemoderniseerd qua keuken, sanitair, meterkast, stucwerk en vloerafwerkingen. Verder zijn bij de woning screens aanwezig en shutters aan de binnenzijde. Ook het gastenverblijf is in 2018 ingericht, de BBQ plaats is gerealiseerd en het zwembad is in de tuin gebouwd. KORTOM EEN RUIME LUXE AFGEWERKTE WONING MET VELE EXTRA’S.

Indeling:
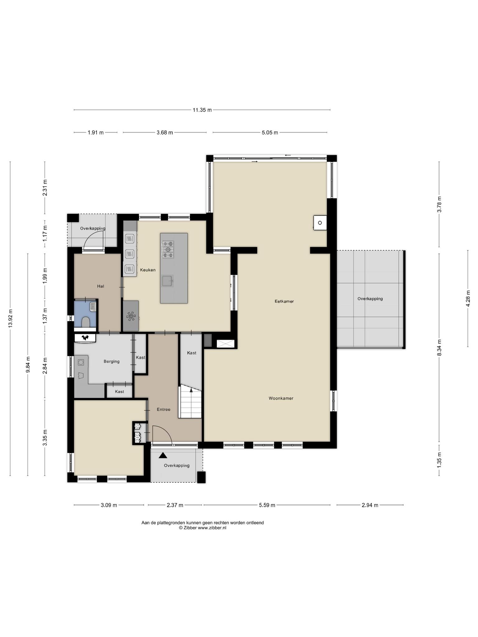
Hal met garderobe en nieuwe meterkast. Vanuit de hal is toegang tot de woonkeuken maar ook de werkkamer, welke aan de voorzijde van de woning is gelegen. Bij binnenkomst in de leefruimte valt gelijk de enorme ruimte op. Centraal in de woning is de woonkeuken met een luxe inrichting voorzien van kookeiland met kookplaat, Quooker en vaatwasser. Aan het eiland is ook ruimte om te zitten. Verder beschikt de keuken over een kastenwand met ingebouwd koffieapparaat, combi oven/magnetron, oven en Amerikaanse koel-/vrieskast. Bij de keuken is een praktische provisiekast. De woonkamer is voorzien van een uitbouw aan de tuinzijde. Aan de voorzijde is een heerlijke zithoek met schouw voorzien van gashaard. Op de vloer ligt een keurige PVC vloer, uiteraard met vloerverwarming. In de tuinkamer/serre is volop zicht over de tuin en staat een houtkachel. Hier is ook een schuifpui naar de tuin. Vanuit de keuken is verder toegang tot een portaal met toiletruimte en buitendeur naar de tuin. Dit portaal biedt ook toegang tot een praktische berging/bijkeuken met aansluitingen voor het witgoed en hier hangt de Atag combiketel uit 2022.

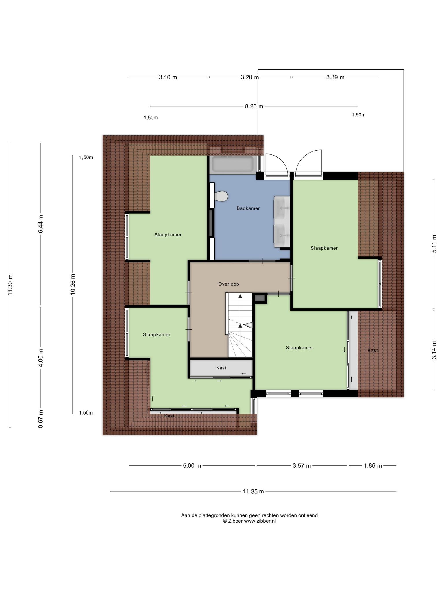
Op de 1e verdieping is een grote overloop met praktisch wasluik, waardoor het mogelijk is de was rechtsreeks naar de wasruimte op de begane grond te krijgen. Er zijn 4 slaapkamers op deze verdieping en een luxe badkamer met wandcloset, grote inloopdouche, dubbele wastafel en een ligbad. Bij een van de slaapkamers is toegang tot een balkon, een andere slaapkamer beschikt over de nodige vaste inbouwkasten. Met een vaste trap is toegang tot de 2e verdieping. Hier is een grote zolderruimte waar een extra slaapkamer is.

Het bijgebouw is verdeeld in een garage en gastenverblijf. Aan de voorzijde is de betegelde garage met elektrische paneeldeur en uitstortgootsteen. Hier is ook toegang tot een grote vliering over het volledige bijgebouw. In de garage staat ook de installatie voor het zwembad. Het gastenverblijf is een prachtige aanvulling op de woning. Hier is een mooie leefruimte met keukenblok voorzien van koelkast, combi oven/magnetron en vaatwasser. Aansluitend is een wellness ruimte met grote douche en toiletruimte. Het is mogelijk hier eventueel een sauna te plaatsen. Aan het bijgebouw staat een fraaie veranda met lamellendak.

De tuin is onderhoudsvriendelijk aangelegd met kunstgras, een groot terras en prachtig ingebouwd zwembad van 5×3 meter. Aan de achterzijde grenst de tuin aan een waterpartij. Dit geeft veel privacy, maar ook een prachtig uitzicht. In de achtertuin is een mooie overdekte BBQ plaats gemaakt. Een heerlijk plekje om lekker te grillen en van de tuin te genieten.

EEN PLAATJE VAN EEN WONING MET ALLE GEMAKKEN EN LUXE VAN DEZE TIJD EN GELEGEN IN EEN PRETTIGE WOONOMGEVING.

  • 251 m2
  • 760 m2
  • 4

Kenmerken Pinksterbloem 6

Overdracht

Vraagprijs€ 899.500,- k.k.
AanvaardingIn overleg

Oppervlaktes en inhoud

Perceel oppervlakte760 m2
Woonoppervlakte251 m2
Inhoud1.169 m3

Bouw

SoortEengezinswoning
BouwvormBestaande bouw
Bouwjaar1996
Dak typeSchilddak
IsolatievormenDakisolatie, Muurisolatie, Vloerisolatie, Dubbelglas
EnergielabelA

Indeling

Aantal verdiepingen3
Aantal kamers9
Aantal slaapkamers4
Aantal badkamers2

Maandlasten

Ligging Pinksterbloem 6

Voorzieningen

Centraal gelegen informatie over de buurt

Aantal inwoners

In de gemeente

15.332

Leeftijd

in percentages van totaal

Huishoudsamenstelling

in percentages van totaal

28%

20% NL

32%

20% NL

39%

20% NL

Vergelijkbaar woningaanbod