€ 976,- p/m
APPARTEMENT VOOR 55+ !
Mooi gelegen op de 2e verdieping appartement met 1 slaapkamer en balkon. Er is een centrale fietsenberging aanwezig in het pand. De Cour is een ouderencomplex met veel gezamenlijke activiteiten in het Atrium.
Kale huurprijs: € 976,17 (exclusief servicekosten)
Servicekosten: € 84,50
Totale huurprijs: € 1060,67 (inclusief servicekosten)
Er zijn in het appartement diverse overnamen aanwezig, deze kunnen overgenomen worden van de vorige huurder.
Deze woning wordt aangeboden door Area. Dit is een vrije sector woning waar geen huurtoeslag bij mogelijk is. Ook gelden hiervoor andere inkomenseisen en voorwaarden.
Om in aanmerking te komen voor deze huurwoning moet u een inkomen hebben van minimaal € 49.670.
Om dit te kunnen beoordelen wordt gekeken naar uw actueel inkomen.
Daarvoor vragen we aan u de volgende documenten als u daadwerkelijk in aanmerking komt:
– Kopie legitimatie
– Inkomensverklaring van de belastingdienst van 2024 / 2025
– Verhuurdersverklaring: indien van toepassing
Er wordt daarnaast gewerkt met een minimale contractperiode van 12 maanden. Na deze 12 maanden is de overeenkomst maandelijks opzegbaar. Area behoudt zich het recht voor te werken met een waarborgsom.
Let op, inwonende kinderen zijn niet toegestaan en de minimale leeftijd is 55+. Nieuwe bewoners dienen er tevens rekening mee te houden dat ze terecht komen in een bewoners community van senioren waar regelmatig gezamenlijke activiteiten georganiseerd worden.
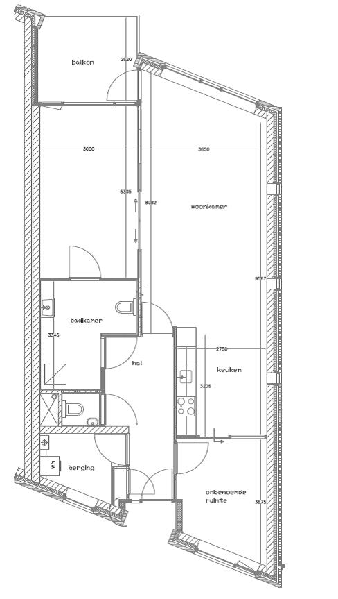
- 88 m2
- 1
Kenmerken de Cour 19
Overdracht
| Huurprijs | € 976,- p/m | 
|---|---|
| Aanvaarding | Direct | 
Oppervlaktes en inhoud
| Woonoppervlakte | 88 m2 | 
|---|---|
| Inhoud | 264 m3 | 
Bouw
| Soort | Portiekflat | 
|---|---|
| Bouwvorm | Bestaande bouw | 
| Bouwjaar | 2003 | 
| Dak type | Samengesteld dak | 
| Isolatievormen | Volledig geïsoleerd | 
| Energielabel | A | 
Indeling
| Aantal verdiepingen | 1 | 
|---|---|
| Aantal kamers | 2 | 
| Aantal slaapkamers | 1 | 
| Aantal badkamers | 1 | 
Maandlasten
Ligging de Cour 19
Voorzieningen
Centraal gelegen informatie over de buurt
Aantal inwoners
In de gemeente
41.384
Leeftijd
in percentages van totaal
Huishoudsamenstelling
in percentages van totaal
63%
20% NL
29%
20% NL
9%
20% NL
 
                             
                             
                             
                             
                             
                             
                             
                             
                             
                             
                             
                             
                             
                             
                             
                                 
                                 
                                 
                                 
                                 
                                 
                                 
                                 
                                 
                                 
                                 
                                 
                                 
                                 
                                 
                                 
                                     
                                                             
                             
                             
                             
                             
            