€ 1.250,- p/m
AAN DE RAND VAN HET UDENSE CENTRUM GELEGEN APPARTEMENT/MAISONNETTE OP DE 3e EN 4e WOONLAAG IN COMPLEX “RESIDENTIE LAND VAN RAVENSTEIN.” HET APPARTEMENT BESCHIKT OVER EIGEN PARKEERPLAATS OP AFGESLOTEN BINNENTERREIN.
Huurvoorwaarden, o.a.:
– huurprijs € 1.250,- per maand
– exclusief kosten voor gas, water, elektra, tv etc.
– exclusief bijdrage in servicekosten voor gebruikerslasten, circa € 50,- per maand
– huurperiode 2 jaar
– geen tijdelijke verhuur, dus langdurig huren mogelijk
– borgsom van 2x een maandhuur
– jaarlijkse indexering huurprijs per 1 juli
– geen huisdieren toegestaan
– huurkandidaten worden gescreend o.b.v. ID
– huurkandidaten dienen IB60 formulier of jaaropgaaf i.c.m. laatste loonstrook aan te leveren
– Minimaal inkomen van huurder is € 50.000,-
– verhuurder behoudt recht van gunning
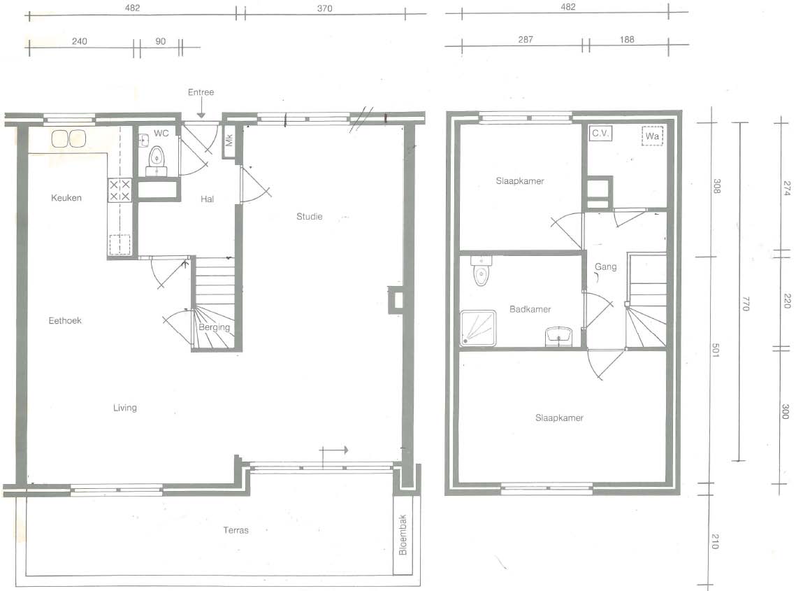
Indeling appartementencomplex:
Het appartementencomplex is in het centrum van Uden gelegen tegenover het politiebureau en het busstation. Het complex bestaat uit 24 appartementen verdeeld over 5 woonlagen. De 3 bovenste appartementen op de 3e verdieping beschikken over een extra (4e) verdieping met 2 slaapkamers, een badkamer en een bergruimte. In het complex is een lift aanwezig, binnen het appartement dient wel een trap genomen te worden naar de verdieping! Het appartement beschikt over een eigen overdekte parkeerplaats op afgesloten parkeerplaats. Toegang tot deze parkeerplaats heeft u middels een elektrisch te bedienen toegangspoort. 
Indeling appartement:
Ruime hal met meterkast en toilet. Woonkamer van ruim 50 m². Het terras strekt zich uit over de gehele breedte van het appartement en heeft een uitzicht richting het  bevrijdingspark.  De ramen aan de terraszijde zijn voorzien van twee elektrisch bedienbare screens. De keuken is voorzien van diverse inbouwapparatuur zoals een 4-pits gaskookplaat met afzuigkap, koelkast met vriezer, elektrische oven en veel bergruimte. Daarnaast is er een grote voorraadkast onder de trap. Vitrage en vitrinekasten in de keuken en grote inbouwkasten in de slaapkamers zijn voor huurders beschikbaar. Op de bovenste verdieping bevinden zich 2 royale slaapkamers van 15 m² en 9 m². De ruime  badkamer is voorzien van douche, wastafel en closet. In een technische ruimte zijn de aansluiting voor de wasmachine en wasdroger. Hier hangt ook de cv.-ketel.
Algemeen:
– Bouwjaar: ca. 1990
– Inhoud : ca. 337 m3
– Gebruiksoppervlakte wonen : ca. 104 m2.
– Groot balkon met uitzicht over het bevrijdingspark
– perfecte ligging midden in het gezellige centrum van Uden nabij busstation, bioscoop en zwembad
- 104 m2
- 2
Kenmerken Pastoor Spieringsstraat 50
Overdracht
| Huurprijs | € 1.250,- p/m | 
|---|---|
| Aanvaarding | Per datum | 
Oppervlaktes en inhoud
| Woonoppervlakte | 104 m2 | 
|---|---|
| Inhoud | 337 m3 | 
Bouw
| Soort | Maisonnette | 
|---|---|
| Bouwvorm | Bestaande bouw | 
| Bouwjaar | 1990 | 
| Dak type | Plat dak | 
| Isolatievormen | Dakisolatie, Muurisolatie, Dubbelglas | 
Indeling
| Aantal verdiepingen | 2 | 
|---|---|
| Aantal kamers | 3 | 
| Aantal slaapkamers | 2 | 
| Aantal badkamers | 1 | 
Maandlasten
Ligging Pastoor Spieringsstraat 50
Voorzieningen
Centraal gelegen informatie over de buurt
Aantal inwoners
In de gemeente
41.384
 
                             
                             
                             
                             
                             
                             
                             
                             
                                 
                                 
                                 
                                 
                                 
                                 
                                 
                                 
                                 
                                     
                                                             
                             
                             
                             
                             
             
            