Ga naar inhoud

Te koop: appartement Neringstraat-West 4 5401 GB Uden

Van de Ven Garantiemakelaars
Neem contact met mij op

Verkocht

€ 365.000,- k.k.

Midden in het centrum gelegen grotendeels moderne bovenwoning met groot en fraai dakterras van maar liefst 54 m²! Alle centrumvoorzieningen zijn gelegen op loopafstand!

Deze bovenwoning is gebouwd in 1972 en is grotendeels tussen 2010 en 2013 grotendeels gemoderniseerd. De woning is in deze periode onder andere voorzien van kunststof kozijnen met dubbel glas, de woonkamer, keuken en toiletruimte zijn gemoderniseerd/gerenoveerd, later in 2017 is de badkamer gemoderniseerd. Het gebruiksoppervlakte wonen is circa 106 m², er is een dakterras van circa 54 m² en totale inhoud van de bovenwoning (incl. portaal met trapopgang) bedraagt 416 m3.

Entree
De entree is gelegen aan de Neringstraat West. Bij de entree op de begane grond is de meterkast en een fietsenberging gelegen. Vanuit hier gaat u met de trap naar de bovenwoning. Op de begane grond is een winkelruimte gelegen. Parkeren is aan de Neringstraat West voor bewoners mogelijk met een parkeervergunning (€82,= per jaar).

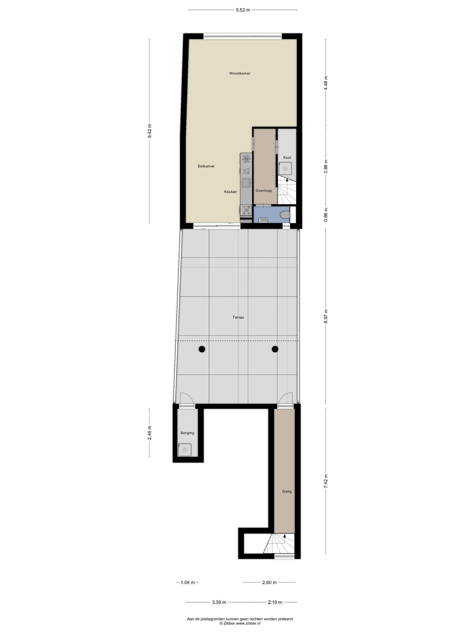
Eerste verdieping
Via de trapopgang komt u op het grote dakterras. Vanaf het dakterras is de entree van de woning bereikbaar. De woning betreedt u door de schuifpui bij de keukenruimte, welke aan de achterzijde is gelegen. De keuken is voorzien van een recht RVS keukenblok met houten werkblad, 5 pits gaskookplaat, oven, afzuigkap, koelkast en vaatwasser. De woonkamer met open keuken is totaal circa 41 m², waarbij de woonkamer is gelegen aan de voorzijde van de woning met mooi uitzicht over de galerij. De grote raampartijen zorgen voor veel lichtinval in de woning. Op de vloer ligt een mooie en sfeervolle parketvloer.

Via een gang met eveneens een eikenhouten vloer is er toegang tot een trapkast, toiletruimte voorzien van wandcloset en fontein en is er de trapopgang naar tweede verdieping.

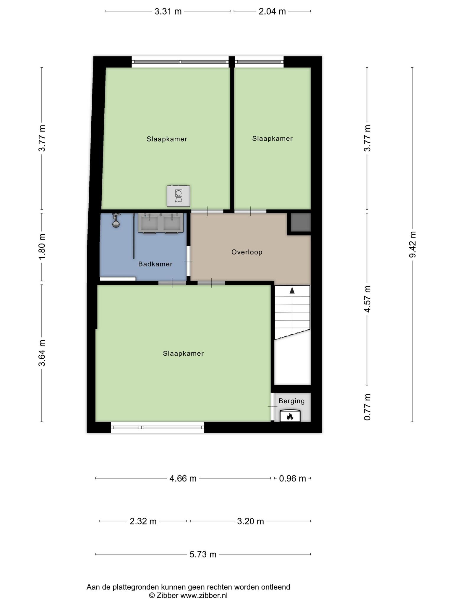
Tweede verdieping
De overloop is voorzien van een nette laminaatvloer en geeft toegang tot drie slaapkamers en de badkamer. De ruime slaapkamers zijn allen voorzien van laminaatvloeren en grote raampartijen waardoor er veel lichtinval is. De grootste slaapkamer heeft een inbouwkast waar de cv.-ketel (Vaillant HR combiketel uit 2011) is geplaatst en heeft tevens rechtstreeks toegang tot de badkamer. Deze moderne badkamer is geheel betegeld en voorzien van een ruime inloopdouche, wastafelmeubel met dubbele kraan. In een van de slaapkamers zijn de witgoedaansluitingen aanwezig.

Dakterras
Het dakterras is zeer ruim, is gelegen op het zuiden en biedt veel privacy. Het dakterras is zeer fraai en sfeervol aangelegd en aan de woning voorzien van een groot terras voorzien van duurzame composiete vlonders, een zonnescherm aan de gevel en planten borders. Achter op het dakterras staat een grote overkapping met keramische tegels, dit is een ideale plek voor een grote loungebank. Vanuit het dakterras is er toegang tot een berging geschikt voor opslag.

VVE
Er is sprake van een kleinschalig complex bestaande uit een winkelruimte met bovenwoning. Samen vormen zij de VVE, waarbij servicekosten betaald worden voor de gezamenlijke opstalverzekering en een kleine reservering voor mogelijk toekomstig onderhouden. De servicekosten bedragen circa € 54,- per maand.

  • 106 m2
  • 3

Kenmerken Neringstraat-West 4

Overdracht

Vraagprijs€ 365.000,- k.k.
AanvaardingIn overleg

Oppervlaktes en inhoud

Woonoppervlakte106 m2
Inhoud416 m3

Bouw

SoortBovenwoning
BouwvormBestaande bouw
Bouwjaar1972
Dak typePlat dak
IsolatievormenDakisolatie, Vloerisolatie, Dubbelglas
EnergielabelC

Indeling

Aantal verdiepingen2
Aantal kamers4
Aantal slaapkamers3
Aantal badkamers1

Maandlasten

Ligging Neringstraat-West 4

Voorzieningen

Centraal gelegen informatie over de buurt

Aantal inwoners

In de gemeente

41.384

Leeftijd

in percentages van totaal

Huishoudsamenstelling

in percentages van totaal

63%

20% NL

29%

20% NL

9%

20% NL

Vergelijkbaar woningaanbod