Ga naar inhoud

Te koop: woonhuis Wachtendonk 501 5403 VB Uden

Van de Ven Garantiemakelaars
Neem contact met mij op

Verkocht

€ 339.000,- k.k.

Keurige hoekwoning met meerdere bergingen en zonnige achtertuin. Er is volop parkeergelegenheid in de nabijheid van de woning. Ook scholen, park en winkelcentrum Drossaard zijn op korte afstand gelegen.

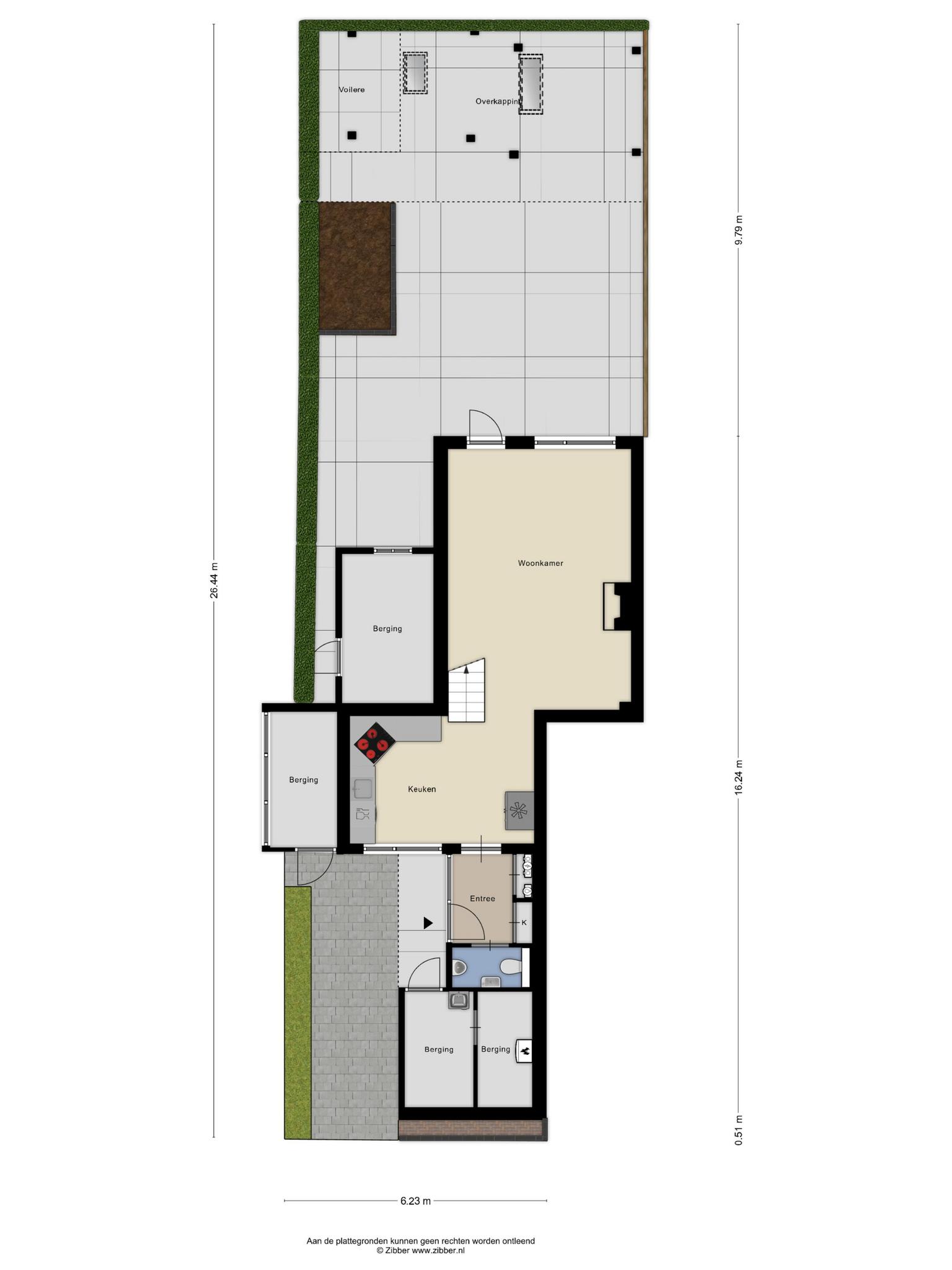
De woning is gebouwd in 1972, heeft een gebruiksoppervlakte wonen van 91 m² en een inhoud van 396 m³. Er zijn aan de voorzijde, achterzijde en zijkant van de woning bergingen aangebouwd, totale oppervlakte aan overige inpandige (berg-)ruimte is zodoende 21 m². Het totale perceel is 185 m² groot. Er is grotendeels dubbele beglazing aanwezig in de houten en kunststof raamkozijnen. De gevels zijn geïsoleerd en gestuukt aan de buitenzijde. In 2023 zijn er nog 18 zonnepanelen geplaatst op het platte dak, de woning is voorzien van vloerverwarming op zowel de begane grond als de 1e verdieping. KORTOM EEN IDEALE STARTERS-/GEZINSWONING.

Indeling:
Hal met meterkast en keurige toiletruimte met wandcloset, urinoir en fontein. Vanuit de hal is toegang tot de woonkamer met open keuken, deze leefruimte is totaal 40 m² groot en speels ingedeeld. De keukeninrichting is aan de voorzijde van de woning gesitueerd en voorzien van een nette inrichting. De vaatwasser en afzuigkap zijn daarbij in 2015 vernieuwd, de oven in 2021 en de inductiekookplaat in 2022. De woonkamer is ruim van opzet waardoor er voldoende ruimte is voor een grote zithoek en eethoek. In de woonkamer is een houtkachel aanwezig. Vanuit de woonkamer is zicht op de tuin, welke ook direct toegankelijk is.

Op de 1e verdieping zijn een overloop met toegang tot 3 slaapkamers en de badkamer. De slaapkamers zijn voorzien van een tegelvloer en zijn respectievelijk ca. 13, 9 en 5 m² groot waarbij de kleinste slaapkamer op dit moment als wasruimte in gebruik is. De moderne badkamer uit 2015 is geheel betegeld en voorzien van vloerverwarming, wandverwarming, ligbad met douchehoek en wastafel met meubel. Op de overloop is een separaat toilet toegankelijk.

De tuin is gelegen op het zuidwesten en bijna 10 meter diep. Door de hoekligging is de tuin breder dan normaal met circa 7,5 meter. Achter in de tuin is een grote overkapping in aanbouw. De tuin is grotendeels verhard en gelegen op het zuidwesten. Aan de achterzijde is een houten tuinberging aangebouwd en aan de zijkant een stenen tuinberging. Voor is de originele berging bij de woning, welke tevens als technische ruimte in gebruik is.

GEÏNTERESSEERD? DAN NODIGEN WIJ JE GRAAG UIT VOOR EEN BEZOEK AAN DEZE WONING.

  • 91 m2
  • 185 m2
  • 3

Kenmerken Wachtendonk 501

Overdracht

Vraagprijs€ 339.000,- k.k.
AanvaardingIn overleg

Oppervlaktes en inhoud

Perceel oppervlakte185 m2
Woonoppervlakte91 m2
Inhoud396 m3

Bouw

SoortEengezinswoning
BouwvormBestaande bouw
Bouwjaar1972
Dak typePlat dak
IsolatievormenDakisolatie, Muurisolatie, Gedeeltelijk dubbelglas
EnergielabelB

Indeling

Aantal verdiepingen2
Aantal kamers4
Aantal slaapkamers3
Aantal badkamers1

Maandlasten

Ligging Wachtendonk 501

Voorzieningen

Centraal gelegen informatie over de buurt

Aantal inwoners

In de gemeente

41.384

Vergelijkbaar woningaanbod