Ga naar inhoud

Te koop: woonhuis Buntweg 7 5411 LK Zeeland

Van de Ven Garantiemakelaars
Neem contact met mij op

Verkocht

€ 1.095.000,- k.k.

Vrijstaande woonboerderij met inpandige garage, onder architectuur aangelegde tuin met zwembad en multifunctioneel bijgebouw gelegen in het buitengebied tussen Zeeland en Uden op loopafstand van het bosgebied “De Trent”.

Interessant voor liefhebbers van het buitenleven en volledige privacy. Gelegen op 5 minuten van het centrum van Zeeland, op 10 minuten van het centrum van Uden en slechts op 30 minuten van ‘s-Hertogenbosch, Nijmegen en Eindhoven.

Wat heeft dit charmante familiehuis u allemaal te bieden:

– Riante en sfeervolle living van ruim 70 m² met authentieke gebinten en openslaande tuindeuren
– Woonkeuken met aansluitend een praktische bijkeuken
– Levensloopbestendige woning met alle benodigde voorzieningen op de begane grond
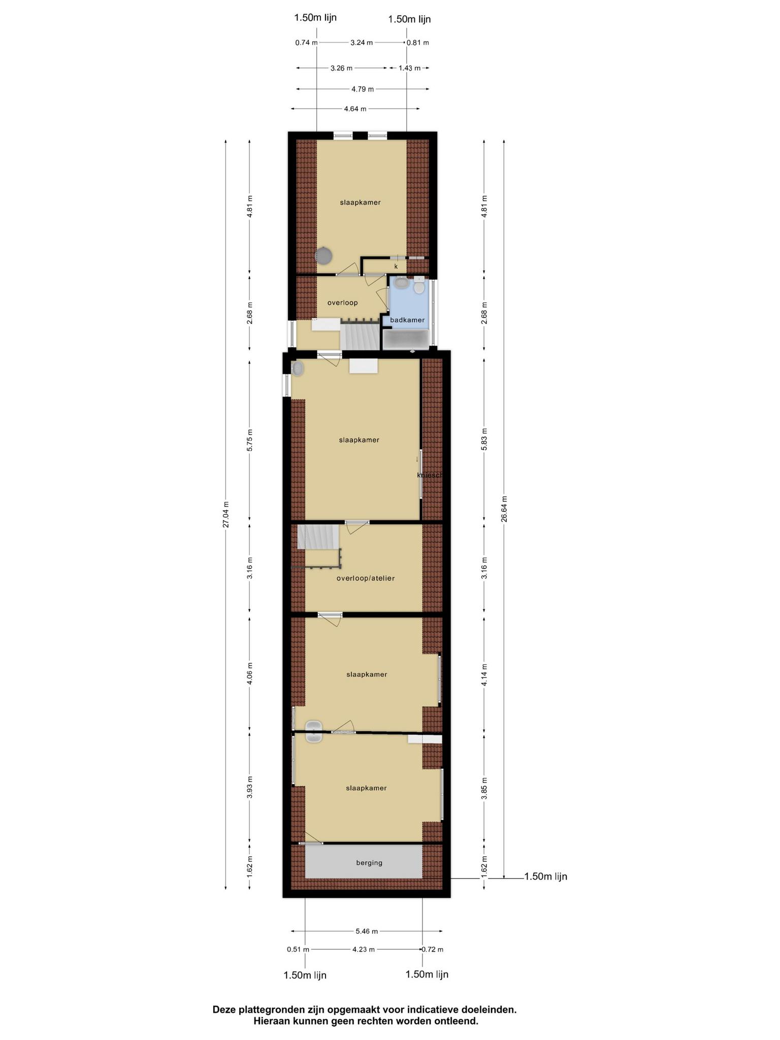
– Maar liefst 8 kamers, waarvan 4 slaapkamers en 2 werk-/studeerkamers
– 2 badkamers, waarvan één zeer luxe badkamer/wellness-ruimte op de begane grond
– wellness ruimte met o.a. stoombad, sauna, verzonken dubbel ligbad, dubbele inloopdouche en 2 wastafels met meubel
– werkkamer/bibliotheek in Engelse stijl met maatwerk kasten en antieke haardkachel
– heuse thuisbioscoop op 1e verdieping met LED vloerverlichting, Dolby Surround en eigen pantry
– domotica systeem voor gehele woning en automatische bediening aanwezige rolluiken op begane grond
– 30 zonnepanelen, elektrische boilers voor wam water, heteluchtverwarming en hout-/gashaarden
– inpandige garage/werkplaats van 60 m², ideale klus-/hobbyruimte
– totale gebruiksoppervlakte wonen van 333 m², inhoud woning circa 1.372 m²
– perceelgrootte van 5.760 m², waarvan circa 3.300 m² achtertuin
– onder architectuur aangelegde Engelse landschapstuin
– geheel omheind terrein met beveiligingssysteem en hoge toegangspoort met intercomsysteem
– 20 parkeerplaatsen op eigen terrein, inclusief laadpaal
– op zonne-energie verwarmd buitenzwembad van 5 x 8,5 meter met nachtverlichting
– riante buitenkeuken met sfeervolle Boleyhaard, elektrische screens en plafondheathers
– Riant terras aan huis voorzien van zwembad en extra (deels overkapt) terras met houten pergola
– Tuin met groot gazon voorzien van beregeningsinstallatie, een vijverpartij met fontein en volwassen boomgaard
– bijgebouw van 60 m², thans in gebruik als extra berg-/stallingsruimte
– bijgebouw ook geschikt te maken voor mogelijke mantelzorg of praktijk-/atelierruimte

Graag laten wij u deze interessante woning zien en sturen wij u de uitgebreide informatie toe. Neem hiervoor contact op met één van de makelaars.

  • 333 m2
  • 5.760 m2
  • 4

Kenmerken Buntweg 7

Overdracht

Vraagprijs€ 1.095.000,- k.k.
AanvaardingIn overleg

Oppervlaktes en inhoud

Perceel oppervlakte5.760 m2
Woonoppervlakte333 m2
Inhoud1.372 m3

Bouw

SoortWoonboerderij
BouwvormBestaande bouw
Bouwjaar1880
Dak typeZadeldak
IsolatievormenDakisolatie, Gedeeltelijk dubbelglas, Voorzetramen
EnergielabelE

Indeling

Aantal verdiepingen2
Aantal kamers8
Aantal slaapkamers4
Aantal badkamers2

Maandlasten

Ligging Buntweg 7

Voorzieningen

Centraal gelegen informatie over de buurt

Aantal inwoners

In de gemeente

15.332

Vergelijkbaar woningaanbod