Ga naar inhoud

Te koop: woonhuis Schoolstraat 10 5411 EE Zeeland

Beschikbaar

Bezichtiging plannen

€ 560.000,- k.k.

Luxe afgewerkte karakteristieke 2/1 kapwoning met berging en verzorgde tuin gelegen aan rustige straat op loopafstand van dorpshuis, basisschool, horeca en winkels.

Deze woning is gebouwd in 1941 maar door de jaren heen volledig gemoderniseerd. De gebruiksoppervlakte wonen is 151 m², de woning is 548 m³ groot en gelegen op een perceel van maar liefst 400 m². De woning is geheel voorzien van houten kozijnen met HR ++ beglazing en beschikt over gevel- en dakisolatie. In 2019/2020 zijn er 10 zonnepanelen geplaatst en beschikt de woning over energielabel C.

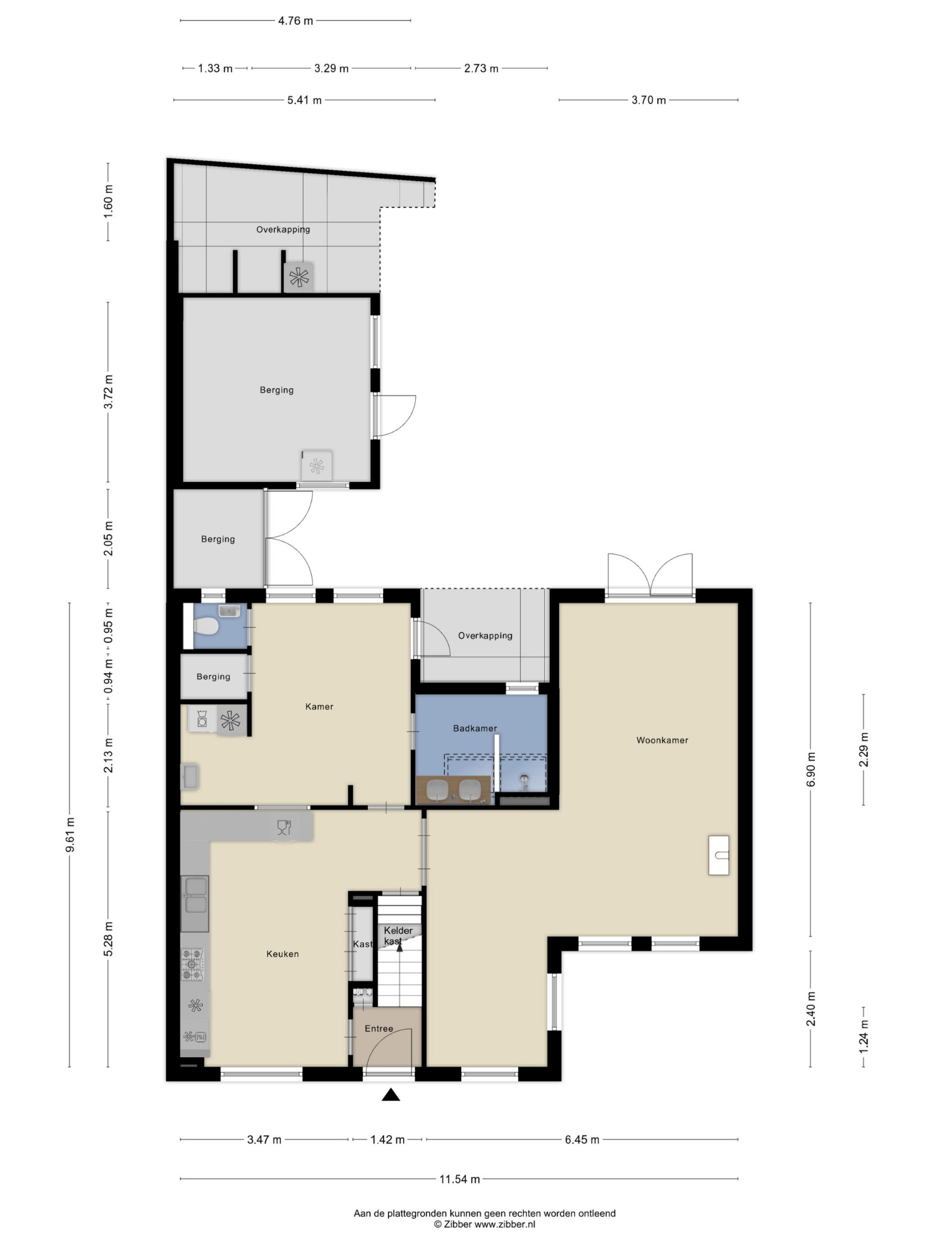
Begane grond
Hal met vernieuwde meterkast en geeft toegang tot de woonkeuken. De woonkeuken is voorzien van een tegelvloer met vloerverwarming en een ruime maatwerk keukeninrichting in hoekopstelling voorzien van 5 pits gaskookplaat, afzuigkap, combi oven/magnetron, koelkast en vaatwasser. Vanuit de keuken is er toegang tot de praktische kelderkast. De royale woonkamer is voorzien van een mooie eikenhout vloer en is voorzien van een sfeervolle houtkachel en openslaande deuren naar de tuin. De woonkamer is ruim genoeg voor het creëren van een speel/werkplek. De inpandige multifunctionele ruimte kan gebruikt worden als speel/werkruimte en is voorzien van de witgoedaansluitingen, een vaste kast en de toiletruimte. Vanuit deze ruimte is er toegang tot de moderne en luxe badkamer voorzien van vloerverwarming, inloopdouche en wastafelmeubel met dubbele wastafel.

Eerste verdieping
Op de eerste verdieping is een overloop met dakraam welke toegang geeft tot vier slaapkamers voorzien van laminaatvloeren, toiletruimte, cv-kast (Atag, 2024) en vliering.

Tuin
Naast de woning ligt een lange oprit met ruimte voor het parkeren van meerdere auto’s op eigen terrein. De woning beschikt over een grote voor- en ruime achtertuin. De achtertuin beschikt over veel privacy en is voorzien van kunstgras, gezellige overkapping, houten berging voorzien van elektra, fietsenhok en houthok. Tot slot is de tuin achterom bereikbaar.

Kortom een keurig afgewerkte karakteristieke woning met vier slaapkamers gelegen op een ruim perceel op loopafstand van de dorpskern gelegen.

  • 151 m2
  • 400 m2
  • 4

Kenmerken Schoolstraat 10

Overdracht

Vraagprijs€ 560.000,- k.k.
AanvaardingIn overleg

Oppervlaktes en inhoud

Perceel oppervlakte400 m2
Woonoppervlakte151 m2
Inhoud548 m3

Bouw

SoortEengezinswoning
BouwvormBestaande bouw
Bouwjaar1941
Dak typeZadeldak
IsolatievormenDakisolatie, Muurisolatie, Dubbelglas
EnergielabelC

Indeling

Aantal verdiepingen3
Aantal kamers7
Aantal slaapkamers4
Aantal badkamers1

Maandlasten

Ligging Schoolstraat 10

Voorzieningen

Centraal gelegen informatie over de buurt

Aantal inwoners

In de gemeente

15.332

Leeftijd

in percentages van totaal

Huishoudsamenstelling

in percentages van totaal

28%

20% NL

32%

20% NL

39%

20% NL

Vergelijkbaar woningaanbod