Ga naar inhoud

Te koop: woonhuis Steenakker 22 5411 BN Zeeland

Van de Ven Garantiemakelaars
Neem contact met mij op

Verkocht

€ 675.000,- k.k.

Op een rustige locatie in de jonge wijk “Steenakker” gelegen keurig onderhouden vrijstaande woning met vrijstaande garage voorzien van bergzolder, carport, oprit voor meerdere auto’s en een mooie vrije tuin! Ideaal voor gezinnen en doorstromers. Met deze volledig geïsoleerde woning, voorzien van vloerverwarming en 16 zonnepanelen, bent u klaar voor de toekomst.

Deze woning ligt op een mooie locatie in een kindvriendelijke woonwijk en op ca. 600 meter van de dorpskern. Winkels, basisscholen en het dorpshuis met sporthal zijn op loopafstand bereikbaar. Maar u bent ook binnen 250 meter in het groene buitengebied of binnen enkele minuten in natuurgebied De Maashorst! Het gemoedelijke dorp Zeeland ligt centraal tussen Eindhoven, Nijmegen en ‘s-Hertogenbosch en is goed bereikbaar, binnen 10 minuten bent u bij snelweg A50.

Kenmerken
Woonoppervlakte: 163 m²
Garage: 30 m² (waarvan 19 m² op de begane grond en 11 m² op de verdieping)
Carport: 42 m²
Perceeloppervlakte: 428 m²
Veranda: 21 m²
De woning is gebouwd in 2001. Daarna is in 2005 de volledig geïsoleerde garage met bergzolder bijgebouwd en in 2012 een royale carport. De veranda is in 2018 gerealiseerd. Na de bouw zijn er nog enkele moderniseringen doorgevoerd. Zo is in 2008 de begane grond voorzien van een tegelvloer, zijn er ensuite-deuren geplaatst tussen woonkamer en keuken, is de keukeninrichting gemoderniseerd en is er in 2022 een complete nieuwe luxe badkamer gerealiseerd. De woning heeft energielabel A en is keurig onderhouden. Zo is in 2023 het buitenschilderwerk nog uitgevoerd.

Indeling
Entree met meterkast (inclusief glasvezelaansluiting), bergkast en trapopgang naar boven. De heerlijk lichte woonkamer is aan de straatzijde gesitueerd en is afgewerkt met stucwerkwanden en -plafond en een tegelvloer welke doorloopt naar de woonkeuken. De woonkeuken is in 2008 voorzien van een vernieuwde inrichting in landelijke stijl met inbouwapparatuur zoals een inductiekookplaat, afzuigkap, vaatwasser, combi-oven, koelkast en vaatwasser. Via openslaande tuindeuren is er rechtstreeks toegang tot de achtertuin. Aansluitend aan de keuken is er toegang tot een speel-/werkkamer, ideaal voor opgroeiende kinderen of als thuiswerkplek. Achter de keuken treft u een praktische bijkeuken voorzien van een aanrechtblok met spoelbak, koelkast en veel opbergruimte. U treft hier tevens de luxe toiletruimte, de wasmachine-aansluiting en ruimte voor een diepvries. Ook via de bijkeuken is er toegang naar de achtertuin. De begane grond is voorzien van vloerverwarming.

Verdiepingen
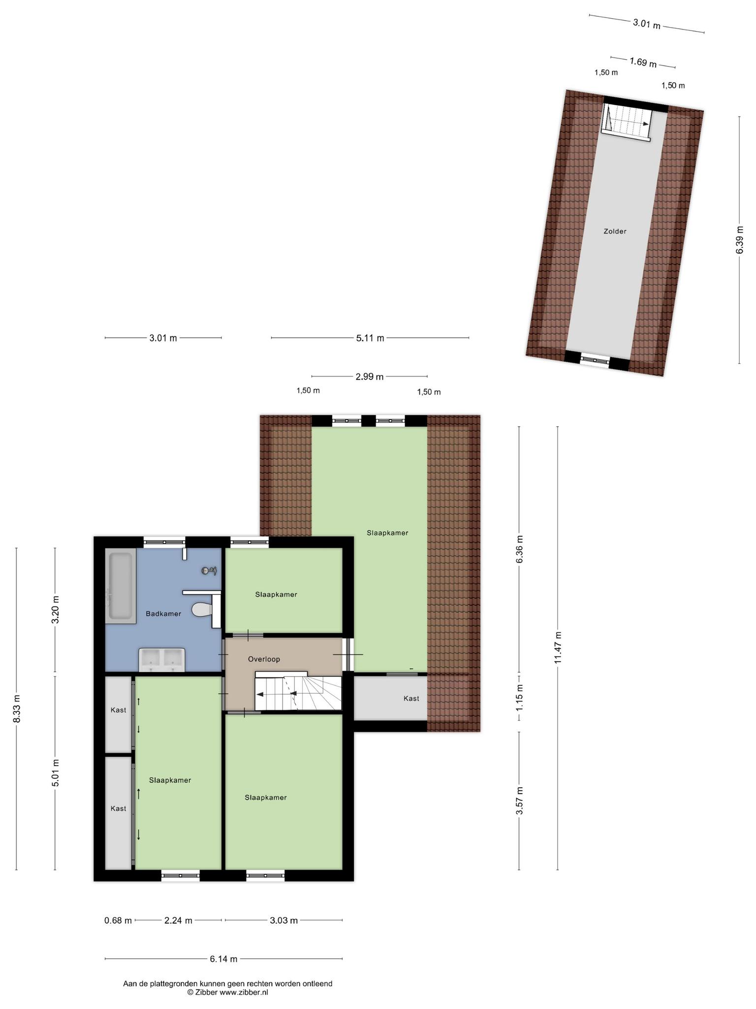
Via de overloop is er toegang tot maar liefst 4 slaapkamers en een grote badkamer. De luxe badkamer is in 2022 vernieuwd, geheel betegeld en ingericht met een inloopdouche, wandcloset, ligbad en dubbele wastafel met badmeubel. Ook hier heeft u comfortabele vloerverwarming en een designradiator. De ouderslaapkamer is maar liefst 20 m² groot en heeft een vaste kledingkast. De overige slaapkamers zijn 15 – 12 en 6.5 m² groot. Er is een vaste trap naar de 2e verdieping. Op de overloop is volop bergruimte en treft u de opstelling van de combiketel (nefit 2001) en de unit voor de mechanische ventilatie. Verder is hier nog een royale 5e slaapkamer.

Bijgebouw en tuin
De heerlijke achtertuin is vrij gelegen en u kunt hier zowel genieten van een plek in de zon als schaduw. Er is een groot terras aan huis en een terras onder de sfeervolle veranda. Rondom is de tuin goed omsloten en via een poort bij de carport toegankelijk. De in spouw gebouwde garage is volledig geïsoleerd en voorzien van een grote bergzolder welke met een vaste trap toegankelijk is. Er is elektra, verwarming en water aanwezig. Deze ruimte is ideaal voor stalling en als hobbyruimte. Ideaal is ook de royale carport. Er kunnen 4 auto’s op eigen terrein geparkeerd worden.

Bent u op zoek naar een duurzame moderne woning in een groene kindvriendelijke woonwijk, dan is dit vrijstaande huis beslist een bezichtiging waard!

  • 163 m2
  • 428 m2
  • 5

Kenmerken Steenakker 22

Overdracht

Vraagprijs€ 675.000,- k.k.
AanvaardingIn overleg

Oppervlaktes en inhoud

Perceel oppervlakte428 m2
Woonoppervlakte163 m2
Inhoud603 m3

Bouw

SoortEengezinswoning
BouwvormBestaande bouw
Bouwjaar2001
Dak typeZadeldak
IsolatievormenVolledig geïsoleerd
EnergielabelA

Indeling

Aantal verdiepingen3
Aantal kamers7
Aantal slaapkamers5
Aantal badkamers1

Maandlasten

Ligging Steenakker 22

Voorzieningen

Centraal gelegen informatie over de buurt

Aantal inwoners

In de gemeente

15.332

Leeftijd

in percentages van totaal

Huishoudsamenstelling

in percentages van totaal

28%

20% NL

32%

20% NL

39%

20% NL

Vergelijkbaar woningaanbod