Ga naar inhoud

Te koop: woonhuis Hoogveld 22 5427 JN Boekel

Van de Ven Garantiemakelaars
Neem contact met mij op

Verkocht

€ 425.000,- k.k.

Modern afgewerkte 2/1 kapwoning met garage, carport, veranda en vrij gelegen achtertuin op het zuiden gelegen in de wijk Dooleggen op korte afstand van de dorpskern van Boekel.

Deze woning is gebouwd in 1990, maar vanaf 2020 nog verbouwd/gemoderniseerd. Bij de verbouwing zijn o.a. het sanitair vernieuwd, een luxe keuken geplaatst, de meterkast vernieuwd, op de begane grond de vloer vernieuwd, opnieuw geïsoleerd en voorzien van een gietvloer met vloerverwarming, er zijn tuindeuren geplaatst aan de achterzijde van de woning en de wanden in de leefruimte zijn strak gestukadoord.

De totale gebruiksoppervlakte in de woning is 137 m² inclusief garage en zolder. Het perceel is 239 m² groot en de woning met garage hebben een inhoud van circa 485 m³. Vanuit de bouwperiode is de woning voorzien van isolatie bij gevels, dak en vloer. Recent is de vloer nog beter geïsoleerd. De houten raamkozijnen zijn voorzien van dubbel glas.

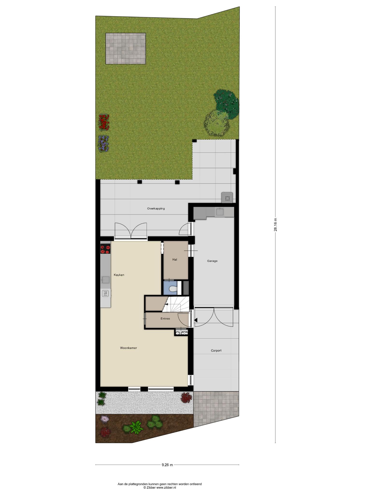
Indeling:
Hal met nieuwe/uitgebreide meterkast en trapopgang naar de verdieping. L-woonkamer met strak stucwerk, mooie gietvloer en openslaande deuren naar de tuin met veranda. De open keuken is aan de achterzijde van de woning gesitueerd en voorzien van een luxe inrichting met inductiekookplaat inclusief geïntegreerde afzuiging, koelkast met twee vriesladen, vaatwasser, combi oven/magnetron en een koffieapparaat. Via de keuken is een portaal met toegang tot de garage en nette toiletruimte. In het portaal zijn ook de aansluitingen voor het witgoed. De garage heeft een keukenblok en deuren naar de oprit en tuin. Ook de Bosch cv.-ketel hangt in de garage. Verder is er nog een trap met toegang tot een vliering boven de garage.

Op de 1e verdieping is een overloop met toegang tot 3 slaapkamers met een moderne badkamer. Deze inpandige badkamer beschikt over een douche, dubbele wastafel en wandcloset. Er is een afzuiging aanwezig in de badkamer. Met een vaste trap is toegang tot een 2e verdieping met een grote zolderkamer. Hier is naast bergruimte ook ruimte voor een 4e slaapkamer.

De tuin is aan de achterzijde vrij gelegen aan sloot met groenstrook. Rondom is de tuin voorzien van keurige houten schuttingen en de tuin is verder grotendeels voorzien van een gazon. Aan het huis is een veranda geplaatst. Dit zorgt voor een beschutte plek om van de zonnige tuin te genieten.

EEN MOOIE GEZINSWONING IN EEN RUSTIGE WOONOMGEVING GELEGEN.

  • 100 m2
  • 239 m2
  • 3

Kenmerken Hoogveld 22

Overdracht

Vraagprijs€ 425.000,- k.k.
AanvaardingIn overleg

Oppervlaktes en inhoud

Perceel oppervlakte239 m2
Woonoppervlakte100 m2
Inhoud485 m3

Bouw

SoortEengezinswoning
BouwvormBestaande bouw
Bouwjaar1990
Dak typeZadeldak
IsolatievormenDakisolatie, Muurisolatie, Vloerisolatie, Dubbelglas
EnergielabelB

Indeling

Aantal verdiepingen3
Aantal kamers5
Aantal slaapkamers3
Aantal badkamers1

Maandlasten

Ligging Hoogveld 22

Voorzieningen

Centraal gelegen informatie over de buurt

Aantal inwoners

In de gemeente

10.414

Leeftijd

in percentages van totaal

Huishoudsamenstelling

in percentages van totaal

29%

20% NL

35%

20% NL

36%

20% NL

Vergelijkbaar woningaanbod