Ga naar inhoud

Te koop: woonhuis Muntmeester 459A 5406 BJ Uden

Van de Ven Garantiemakelaars
Neem contact met mij op

Verkocht

€ 450.000,- k.k.

Op Uden-Zuid gelegen uitgebouwde hoekwoning met eigen oprit, ruime stenen berging en brede achtertuin met veranda. Deze ideale gezinswoning ligt op loopafstand van scholen, een supermarkt en speelgelegenheden en ook het gezellige centrum van Uden is binnen 10 minuten te bereiken. De woning heeft door de uitbouw een grote woonkamer en 4 slaapkamers. Ook het parkeren van 2 auto’s op eigen terrein is ideaal!

Kenmerken:
De woning is gebouwd in 2012 en toen direct voorzien van aanbouw over de volle breedte van de woning. Aan de zijkant van de woning staat een stenen berging (2.85 x 4.78). Ideaal is de oprit voor deze berging waar 2 auto’s geparkeerd kunnen worden. Verder is er volop parkeergelegenheid in de straat.
De woonoppervlakte bedraagt 124 m². De overige inpandige ruimte (aangebouwde berging) is 14 m² en het perceel is maar liefst 210 m² groot. De woning is volledig geïsoleerd en beschikt over houten kozijnen met HR-beglazing en grotendeels elektrisch bedienbare rolluiken. Het energielabel is A.

Begane grond
Hal voorzien van meterkast (9 groepen, 3x aardlek en glasvezelaansluiting) en moderne toiletruimte met wandcloset en fontein. Vervolgens komt u in de royale woonkamer (ca. 43 m²). Door de uitbouw aan de achterzijde zeer royaal en van veel licht voorzien door de glazen pui met openslaande deuren aan de tuinzijde. De moderne keuken is aan de voorzijde gesitueerd en luxe ingericht met een 5-pits-gaskookplaat, afzuigkap, combi oven/magnetron, koelkast en vaatwasser. De gehele begane grond vloer is voorzien van een tegelvloer met vloerverwarming. Vanuit de woonkamer zijn de trapkast en de trap naar de eerste verdieping te bereiken.

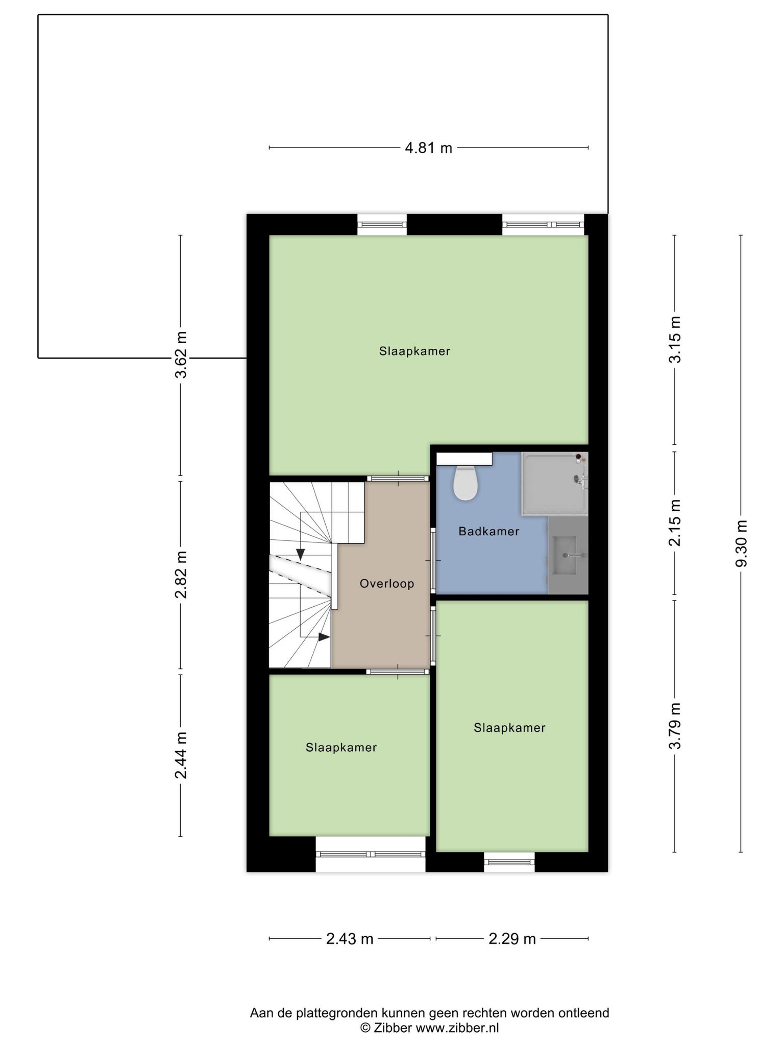
Eerste verdieping
Via de overloop zijn drie slaapkamers en de badkamer bereikbaar. De slaapkamers zijn 16.3 m², 8.6 m² en 5.9 m² groot en allen voorzien van rolluiken en een pvc-vloer. De moderne badkamer is geheel betegeld en ingericht met een inloopdouche, wandcloset en wastafelmeubel met wastafel. De gehele 1e verdieping is tevens voorzien van vloerverwarming. Via een vaste trap is de tweede verdieping bereikbaar.

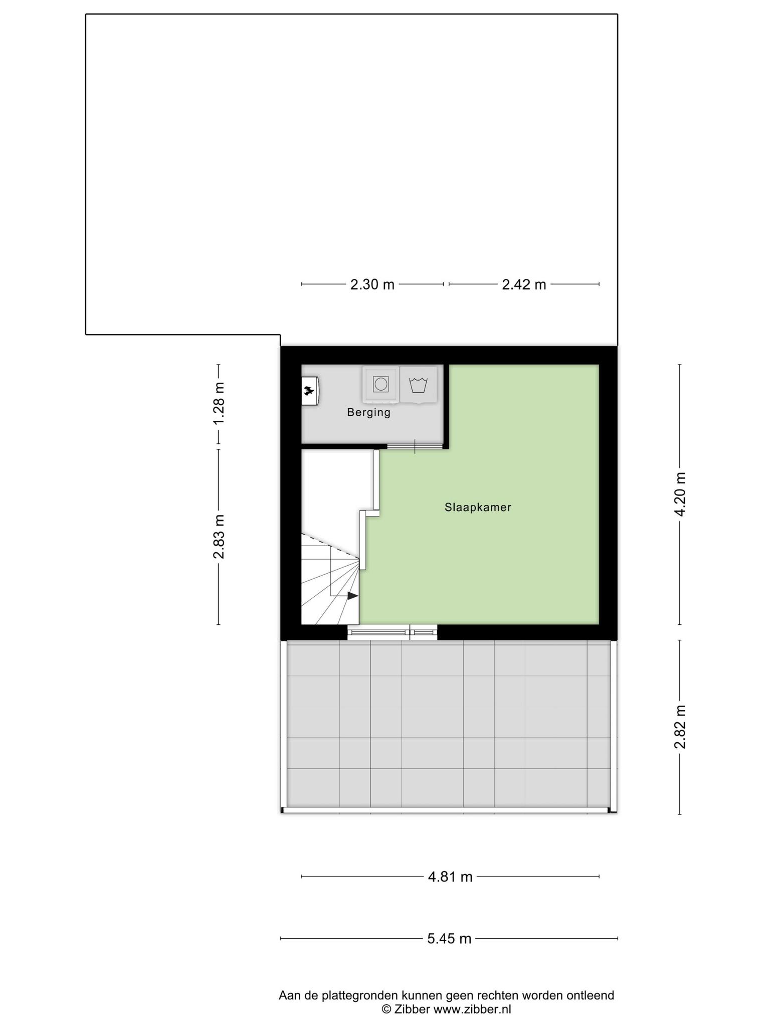
Tweede verdieping
Op deze open ruime etage treft u de 4e slaapkamer. In een vaste kastruimte zijn de wasmachine-aansluiting en technische installaties keurig weggewerkt. Hier treft u de opstelling van de combiketel (Intergas 2012), de unit voor mechanische ventilatie. Deze verdieping is afgewerkt met een nette laminaatvloer en beschikt ook over een rolluik.

Tuin
Deze hoekwoning heeft door het grotere perceel niet alleen een inrit extra maar ook een extra brede achtertuin. De fraai aangelegde tuin is onderhoudsvriendelijk en vrij gelegen. U kunt genieten van zowel zon als schaduw. Achter in de tuin staat een prachtige veranda waar u vele uurtjes zult genieten. De stenen berging is vanuit de inrit en tuin toegankelijk, een fijne grote opslagruimte voor fietsen, een motor en tuingereedschap.

Deze woning heeft veel voordelen: de hoekligging, extra woonoppervlak door de uitbouw, een eigen oprit voor 2 auto’s, een grotere tuin met prachtige veranda en een goede ligging in een jonge populaire woonwijk. U bent van harte welkom voor een bezichtiging!

Aanvaarding: in overleg

  • 124 m2
  • 210 m2
  • 4

Kenmerken Muntmeester 459A

Overdracht

Vraagprijs€ 450.000,- k.k.
AanvaardingIn overleg

Oppervlaktes en inhoud

Perceel oppervlakte210 m2
Woonoppervlakte124 m2
Inhoud489 m3

Bouw

SoortEengezinswoning
BouwvormBestaande bouw
Bouwjaar2012
Dak typeSamengesteld dak
IsolatievormenVolledig geïsoleerd
EnergielabelA

Indeling

Aantal verdiepingen3
Aantal kamers5
Aantal slaapkamers4
Aantal badkamers1

Maandlasten

Ligging Muntmeester 459A

Voorzieningen

Centraal gelegen informatie over de buurt

Aantal inwoners

In de gemeente

41.384

Leeftijd

in percentages van totaal

Huishoudsamenstelling

in percentages van totaal

22%

20% NL

24%

20% NL

54%

20% NL

Vergelijkbaar woningaanbod